CODIGO 1552
Casa moderna Arq. Estudio Diácono en venta y alquiler de verano en Cariló
Localidad: Cariló
Dirección: Av. Divisadero 775 equina Chuña
Fracción: 10  Manzana: 78  Lote: 10
Superficie
del lote:

1300 m2
Superficie
cubierta:

260 m2
Superficie
total:

321,96 m2
Año de
construcción:

2024

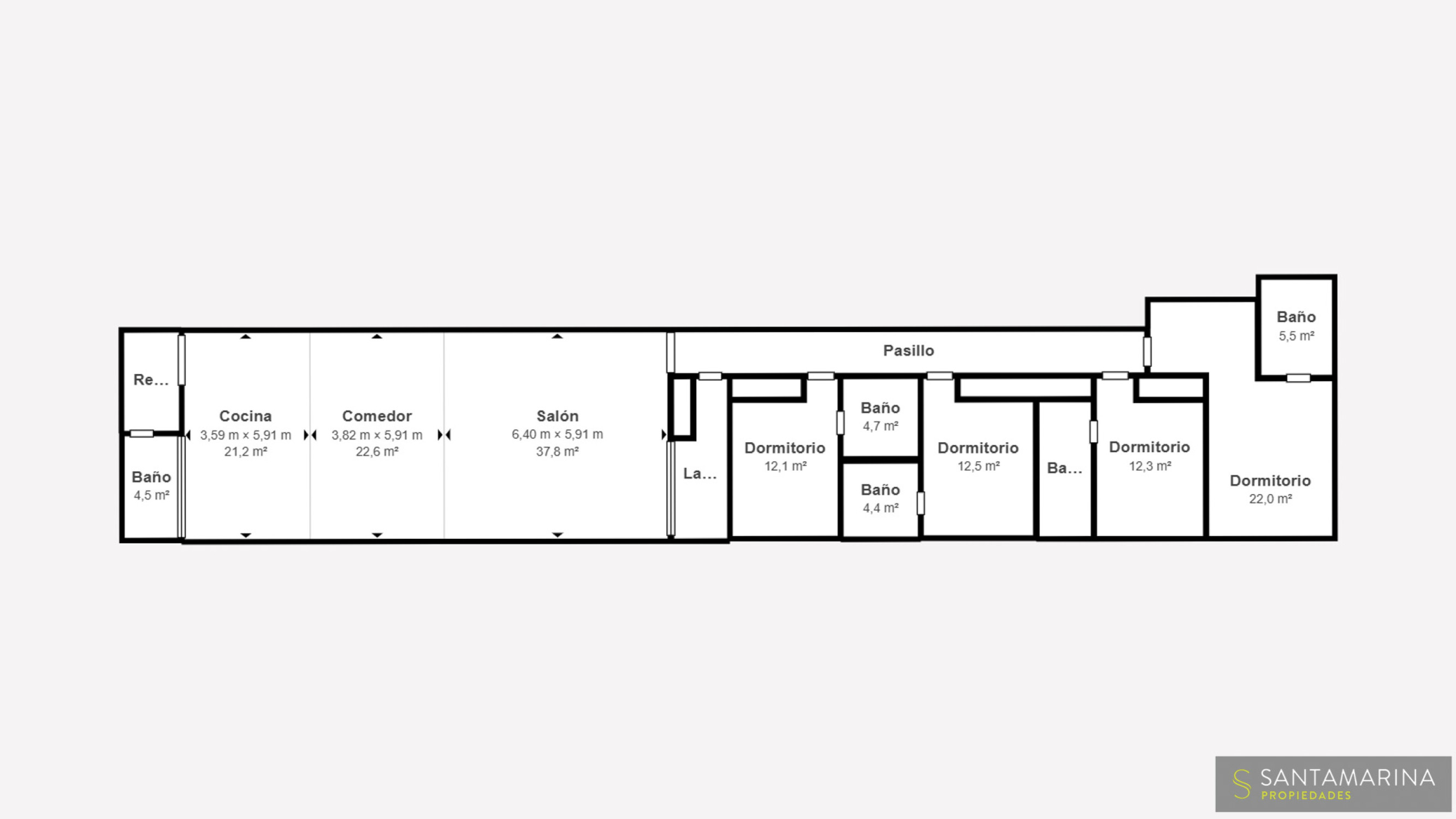
Diseñada por el reconocido estudio Diácono, esta casa moderna en alquiler de verano en Cariló redefine la experiencia de vacacionar con un estilo minimalista, cómodo y estético en cada detalle. Desde el ingreso, un recibidor conecta el ambiente principal con el toilette, marcando ese equilibrio entre funcionalidad y diseño que recorre toda la propiedad.

El living comedor integrado a la cocina se abre con paredes vidriadas hacia una galería semicubierta con parrilla, piscina y fogonero. Un espacio pensado para vivir Cariló al aire libre, para bajar las revoluciones y reconectar con lo natural. La luz, el silencio del bosque y la amplitud de los ambientes acompañan cada momento.

La casa ofrece cuatro habitaciones en suite, luminosas y confortables, diseñadas para garantizar privacidad y descanso durante toda la estadía. Se completa con un cuarto de lavado y una selección de comodidades premium que elevan la experiencia vacacional.

Con una arquitectura limpia, líneas simples y una estética cuidadísima, esta propiedad propone un modo distinto de disfrutar el verano: más relajado, más consciente y lleno de comodidad. Un alquiler de verano en Cariló donde el diseño y la tranquilidad se encuentran.

Consultanos disponibilidad y reservá tu estadía en esta casa perfecta para disfrutar el verano en Cariló.

U$S 950.000
Belen Mancinelli

belen@santamarinapropiedades.com
+54 9 2267 44-0334

Ubicación
StreetView
Recorrido Virtual